Thursday, December 1, 2016

Building My Dream House + Plans: Part 3

Hey guys!! Ready to dive into this house selling/buying/building saga a little bit more?!

We last left off at the end of March with a rough first draft floor plan from the architect. I was wildly obsessed with the idea of doing a pitched roof/loft style master so the story and 1/2 maximum requirement in the CC&R’s at Stucki Farms were sort of perfect.

Sidetone: For those that are unfamiliar let me explain it just a little bit more. A story is considered where the plate line is. So if your house has 10 foot ceilings, you’ll have a 10 foot plate line which means if there is a second level to the house its roughly 1/2 of that height.

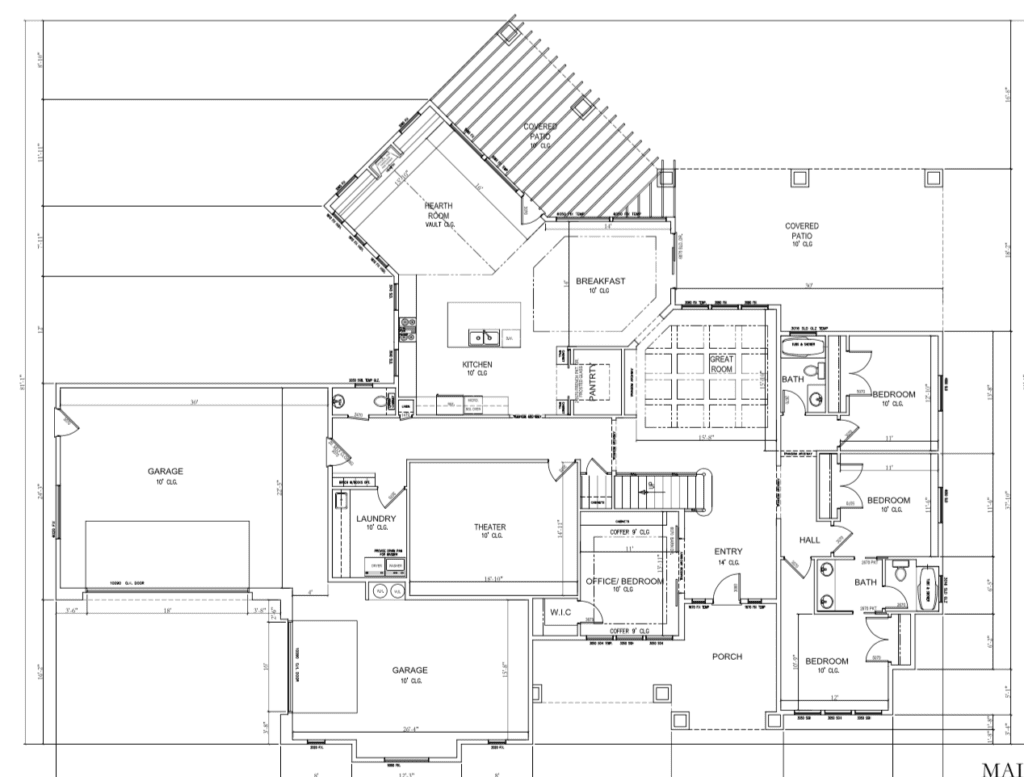
If we’re diving into the plans that he originally sent over, I LOVE LOVE LOVED the Hearth Room off of the kitchen. I love the angle, I love the space, I love the vaulted ceiling, LOVE IT ALL. The biggest problem was that we needed another bedroom added. This is the original plan:

screen-shot-2016-11-22-at-6-30-25-am

I made a list of all of the changes, redrew lines and sent it back. (I even color coded it, red for sq/footage that I wanted taken out, green for where it was added.) I changed the garage configuration and most of the room sizes.

screen-shot-2016-12-01-at-12-40-04-am

Here’s a before and after overlay so you can see all of the changes without spending years analyzing it.

1 So mid March I sent this off and waited.

And waited.

And waited.

And waited.

I’m not the most patient of souls so waiting on something that I was SO excited about was tortuous.  After quite a bit of back and forth relaying info we (the architect, the contractor, and myself) met and hashed things out for an hour. It was significantly more efficient than trying to describe something through email. At the end of April we finally got back the second draft, complete with my second floor master suite.

screen-shot-2016-12-01-at-12-54-08-am screen-shot-2016-12-01-at-12-53-51-am

There were some weird moments in these plans, like the empty spaces in the master bathroom (behind the toilet and sink) so we started the back and forth process again, and again it was finally sitting down at his office talking through the issues and working on things in real time to get it to where it made sense.

Meanwhile I’m happily designing my dream home with little to no regard for $$$. Because I just want to know what the things that I want come back at before I settle for something I don’t want.

I think this is a HUGE trap that most people find themselves in. There are the things that they want and they rationalize spending more on the things that they want by cutting things out elsewhere. But you know what? Elsewhere isn’t really a thing. Unless you’re cutting square footage elsewhere is this place where piles of money go to die and disappear. Its insane that you easily can spend $500k on a house and still not get what you want. But I’m getting a little ahead of myself…

The beginning of May I finally saw the face of my baby. The elevation!! This is the closest thing that I’ve ever felt to the sensation of looking at your brand new baby for the first time. You know them, you love them, but you don’t know what they’ll look like until they are there. Ya know? We’d spent months planning the floorplan and the guts of the house and now I was finally able to see what it actually looked like.

screen-shot-2016-12-01-at-1-06-40-amTo Be Continued…(dun dun DUUUUUN!)

The post Building My Dream House + Plans: Part 3 appeared first on Vintage Revivals.


via Mandi at Building My Dream House + Plans: Part 3